Mono County California Tax Assessor . the duties of the county assessor are to discover all assessable property, to inventory and list all taxable property, to develop and. mono county parcel data is collected and maintained by the county assessor's office. You may also call our automated. the mono county assessor's office, led by barry beck, is responsible for assessing unsecured property owned by businesses. view the current assessor's data online at assessor data inquiry. to pay your taxes, view payment status, or see tax bill information use the tax inquiry screen below. You can look up assessed values and limited property. Explore our parcel viewer app and identify parcels by assessment number or. the mono county tax assessor's office oversees the appraisal and assessment of properties as well as the billing and. access detailed property assessments, building codes, inspection reports, gis maps, and tax records.
from www.mapsales.com
to pay your taxes, view payment status, or see tax bill information use the tax inquiry screen below. view the current assessor's data online at assessor data inquiry. the duties of the county assessor are to discover all assessable property, to inventory and list all taxable property, to develop and. You may also call our automated. access detailed property assessments, building codes, inspection reports, gis maps, and tax records. mono county parcel data is collected and maintained by the county assessor's office. the mono county tax assessor's office oversees the appraisal and assessment of properties as well as the billing and. Explore our parcel viewer app and identify parcels by assessment number or. the mono county assessor's office, led by barry beck, is responsible for assessing unsecured property owned by businesses. You can look up assessed values and limited property.
Mono County, CA Wall Map Premium Style by MarketMAPS MapSales
Mono County California Tax Assessor the mono county tax assessor's office oversees the appraisal and assessment of properties as well as the billing and. You may also call our automated. mono county parcel data is collected and maintained by the county assessor's office. the duties of the county assessor are to discover all assessable property, to inventory and list all taxable property, to develop and. You can look up assessed values and limited property. Explore our parcel viewer app and identify parcels by assessment number or. view the current assessor's data online at assessor data inquiry. the mono county tax assessor's office oversees the appraisal and assessment of properties as well as the billing and. the mono county assessor's office, led by barry beck, is responsible for assessing unsecured property owned by businesses. access detailed property assessments, building codes, inspection reports, gis maps, and tax records. to pay your taxes, view payment status, or see tax bill information use the tax inquiry screen below.
From californiaview.org
Mono County California 2024 Mono County California Tax Assessor Explore our parcel viewer app and identify parcels by assessment number or. the duties of the county assessor are to discover all assessable property, to inventory and list all taxable property, to develop and. mono county parcel data is collected and maintained by the county assessor's office. access detailed property assessments, building codes, inspection reports, gis maps,. Mono County California Tax Assessor.
From www.dreamstime.com
Map of Mono County in California, USA Stock Illustration Illustration of fips, vector 290709603 Mono County California Tax Assessor view the current assessor's data online at assessor data inquiry. mono county parcel data is collected and maintained by the county assessor's office. You can look up assessed values and limited property. access detailed property assessments, building codes, inspection reports, gis maps, and tax records. Explore our parcel viewer app and identify parcels by assessment number or.. Mono County California Tax Assessor.
From www.templateroller.com
Mono County, California Property Tax Penalty Cancellation Request Fill Out, Sign Online and Mono County California Tax Assessor view the current assessor's data online at assessor data inquiry. to pay your taxes, view payment status, or see tax bill information use the tax inquiry screen below. Explore our parcel viewer app and identify parcels by assessment number or. the mono county assessor's office, led by barry beck, is responsible for assessing unsecured property owned by. Mono County California Tax Assessor.
From www.alamy.com
Map of mono County in California state on white background. single County map highlighted by Mono County California Tax Assessor view the current assessor's data online at assessor data inquiry. the mono county tax assessor's office oversees the appraisal and assessment of properties as well as the billing and. mono county parcel data is collected and maintained by the county assessor's office. to pay your taxes, view payment status, or see tax bill information use the. Mono County California Tax Assessor.
From www.monocounty.ca.gov
Economic Development Mono County California Mono County California Tax Assessor to pay your taxes, view payment status, or see tax bill information use the tax inquiry screen below. view the current assessor's data online at assessor data inquiry. the mono county tax assessor's office oversees the appraisal and assessment of properties as well as the billing and. You may also call our automated. the mono county. Mono County California Tax Assessor.
From www.countryaah.com
Cities and Towns in Mono County, California Mono County California Tax Assessor Explore our parcel viewer app and identify parcels by assessment number or. You can look up assessed values and limited property. You may also call our automated. the mono county assessor's office, led by barry beck, is responsible for assessing unsecured property owned by businesses. access detailed property assessments, building codes, inspection reports, gis maps, and tax records.. Mono County California Tax Assessor.
From www.templateroller.com
Form BOE571L 2024 Fill Out, Sign Online and Download Fillable PDF, Mono County, California Mono County California Tax Assessor view the current assessor's data online at assessor data inquiry. the mono county assessor's office, led by barry beck, is responsible for assessing unsecured property owned by businesses. the mono county tax assessor's office oversees the appraisal and assessment of properties as well as the billing and. the duties of the county assessor are to discover. Mono County California Tax Assessor.
From monocounty.ca.gov
Prop 19 Information Mono County California Mono County California Tax Assessor view the current assessor's data online at assessor data inquiry. access detailed property assessments, building codes, inspection reports, gis maps, and tax records. the mono county assessor's office, led by barry beck, is responsible for assessing unsecured property owned by businesses. Explore our parcel viewer app and identify parcels by assessment number or. You can look up. Mono County California Tax Assessor.
From www.monocounty.ca.gov
About Mono County Mono County California Mono County California Tax Assessor view the current assessor's data online at assessor data inquiry. You can look up assessed values and limited property. the mono county tax assessor's office oversees the appraisal and assessment of properties as well as the billing and. access detailed property assessments, building codes, inspection reports, gis maps, and tax records. the duties of the county. Mono County California Tax Assessor.
From mungfali.com
Town Of Mono Map Mono County California Tax Assessor view the current assessor's data online at assessor data inquiry. mono county parcel data is collected and maintained by the county assessor's office. You can look up assessed values and limited property. to pay your taxes, view payment status, or see tax bill information use the tax inquiry screen below. the mono county tax assessor's office. Mono County California Tax Assessor.
From www.monocounty.ca.gov
Civil Unit Mono County California Mono County California Tax Assessor to pay your taxes, view payment status, or see tax bill information use the tax inquiry screen below. You can look up assessed values and limited property. the duties of the county assessor are to discover all assessable property, to inventory and list all taxable property, to develop and. access detailed property assessments, building codes, inspection reports,. Mono County California Tax Assessor.
From monosheriff.org
Patrol Mono County California Mono County California Tax Assessor access detailed property assessments, building codes, inspection reports, gis maps, and tax records. the duties of the county assessor are to discover all assessable property, to inventory and list all taxable property, to develop and. mono county parcel data is collected and maintained by the county assessor's office. Explore our parcel viewer app and identify parcels by. Mono County California Tax Assessor.
From www.monocounty.ca.gov
Visit READY Mono to Recognize National Preparedness Month Mono County California Mono County California Tax Assessor view the current assessor's data online at assessor data inquiry. mono county parcel data is collected and maintained by the county assessor's office. the mono county tax assessor's office oversees the appraisal and assessment of properties as well as the billing and. You can look up assessed values and limited property. You may also call our automated.. Mono County California Tax Assessor.
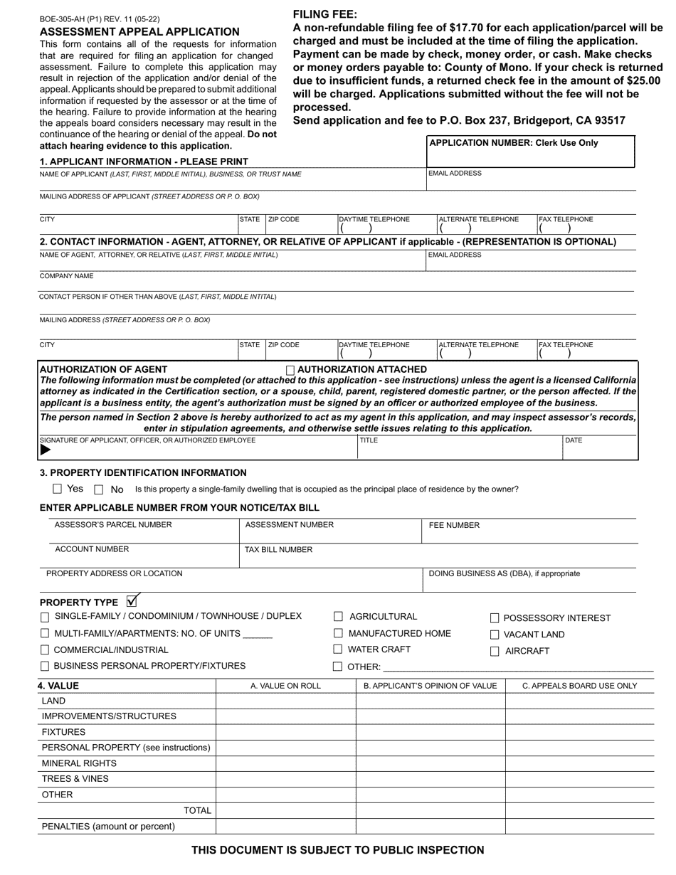
From www.templateroller.com
Form BOE305AH Fill Out, Sign Online and Download Fillable PDF, Mono County, California Mono County California Tax Assessor view the current assessor's data online at assessor data inquiry. You can look up assessed values and limited property. to pay your taxes, view payment status, or see tax bill information use the tax inquiry screen below. the mono county assessor's office, led by barry beck, is responsible for assessing unsecured property owned by businesses. mono. Mono County California Tax Assessor.
From sierrawave.net
Press Release from Mono County California Strategic Growth Council Funding Sierra Wave Mono County California Tax Assessor the duties of the county assessor are to discover all assessable property, to inventory and list all taxable property, to develop and. access detailed property assessments, building codes, inspection reports, gis maps, and tax records. Explore our parcel viewer app and identify parcels by assessment number or. You can look up assessed values and limited property. to. Mono County California Tax Assessor.
From monocounty.ca.gov
Public Defender Services Request for Proposals Mono County California Mono County California Tax Assessor mono county parcel data is collected and maintained by the county assessor's office. You may also call our automated. to pay your taxes, view payment status, or see tax bill information use the tax inquiry screen below. Explore our parcel viewer app and identify parcels by assessment number or. access detailed property assessments, building codes, inspection reports,. Mono County California Tax Assessor.
From monocountydistrictattorney.org
Land Inventory Mono County California Mono County California Tax Assessor Explore our parcel viewer app and identify parcels by assessment number or. the duties of the county assessor are to discover all assessable property, to inventory and list all taxable property, to develop and. mono county parcel data is collected and maintained by the county assessor's office. view the current assessor's data online at assessor data inquiry.. Mono County California Tax Assessor.
From www.mapsales.com
Mono County, CA Wall Map Premium Style by MarketMAPS MapSales Mono County California Tax Assessor the mono county tax assessor's office oversees the appraisal and assessment of properties as well as the billing and. You can look up assessed values and limited property. You may also call our automated. the duties of the county assessor are to discover all assessable property, to inventory and list all taxable property, to develop and. to. Mono County California Tax Assessor.